Limassol Property Office Building Development Project

€1,700,000
Agia Fyla , Limassol

Overview

  • Updated On:
  • January 22, 2026
  • 1,147.00 m2
  • Covered Garages
  • 1,000.00 m2

Description

17934

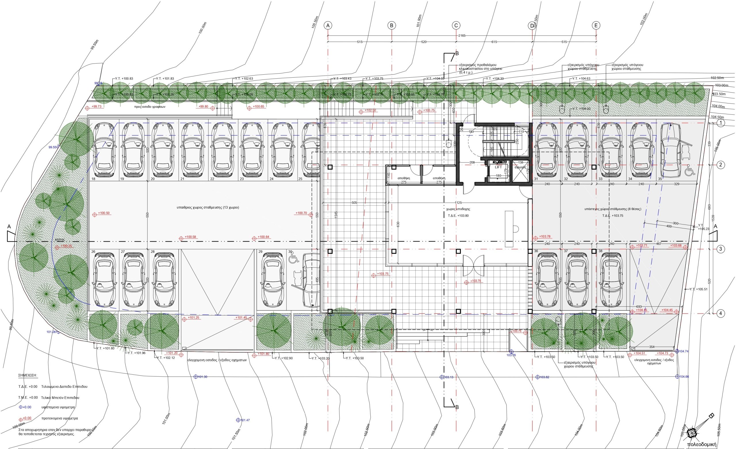
This modern office building project is located in the Agia Fyla area of Limassol, on Agias Fylaxeos Avenue, with excellent access to the business district, private schools, government offices, and the highway network.

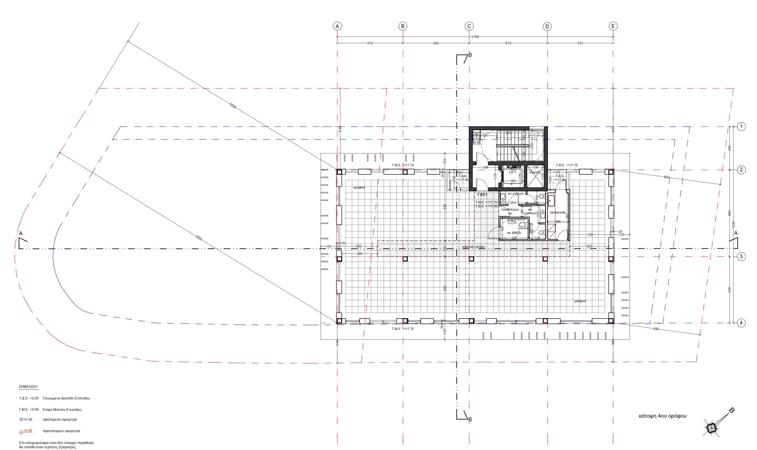
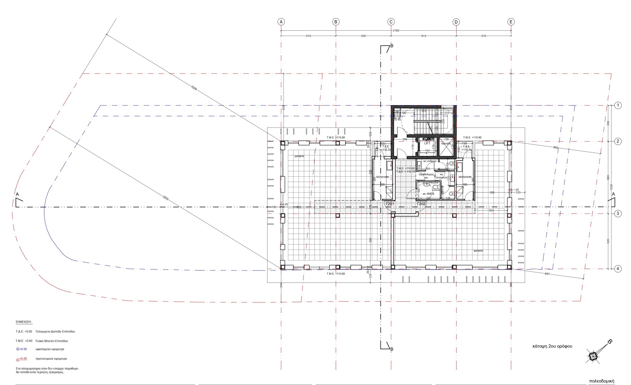
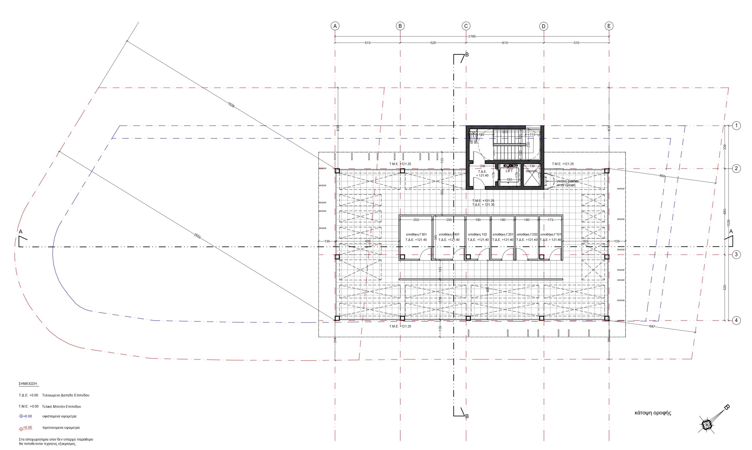
The development will be built on two adjoining plots totaling 1,147 m2 and will offer approximately 1,000 m2 of net open-plan office space (1,332 m2 gross) across four floors. From the third floor upwards, the building enjoys city and sea views, while the ground floor includes a reception area and the top floor features a roof garden. The project is sold as-is, including both plots and all approved permits, ready for immediate development.

EXTRA FEATURES

  • 25 covered parking spaces
  • 13 uncovered parking spaces

Address: Agia Fyla
City:
Country: Cyprus

Listing Id: 17934
Price: €1,700,000
Property Size: 1,000.00 m2
Property Lot Size: 1,147.00 m2
Year Built: 2028
Garages: Covered
Property ID: 17934
Number of floors in the building: 4
Plot type: Commercial

Other Features
Parking space
Title deeds

Ground floor
1st floor
2nd floor
3rd floor
4th floor
Roof garden

Contact Me

Similar Listings

2
For sale
Plots

Limassol Property Residential Plot in Moni-9...

€190,000
18765 Two plots are located in Moni, Limassol, each spanning 952 m². Both plots fall under ...
952.00 m2
2
For sale
Plots

Limassol Property Agricultural Field-38.128m...

€368,000
18758 This agricultural field is located in Apesia, Limassol, and spans 38,128 m². The pro ...
2
For sale
Plots

Limassol Property Two Adjacent Plots in Pare...

€1,600,000
18752 These two adjacent plots are located in Pareklisia, Limassol, just 2.3 km from the s ...
3
For sale
Plots

Limassol Property Residential Plots in Param...

€2,500,000
18670 These plots are situated in the village of Paramytha, Limassol. This outstanding dev ...
  • Advanced Search

  • Tools

    Property Fees Calculator

    VAT Frequently Asked Questions

    Capital Tax Calculator

  • Mortgage Calculator

Compare Listings

Antonis Michael